Bay Harbor House Plan

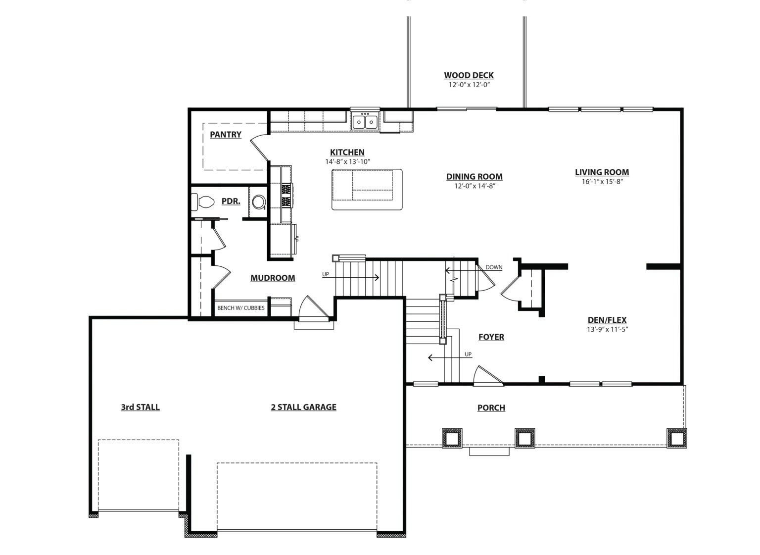
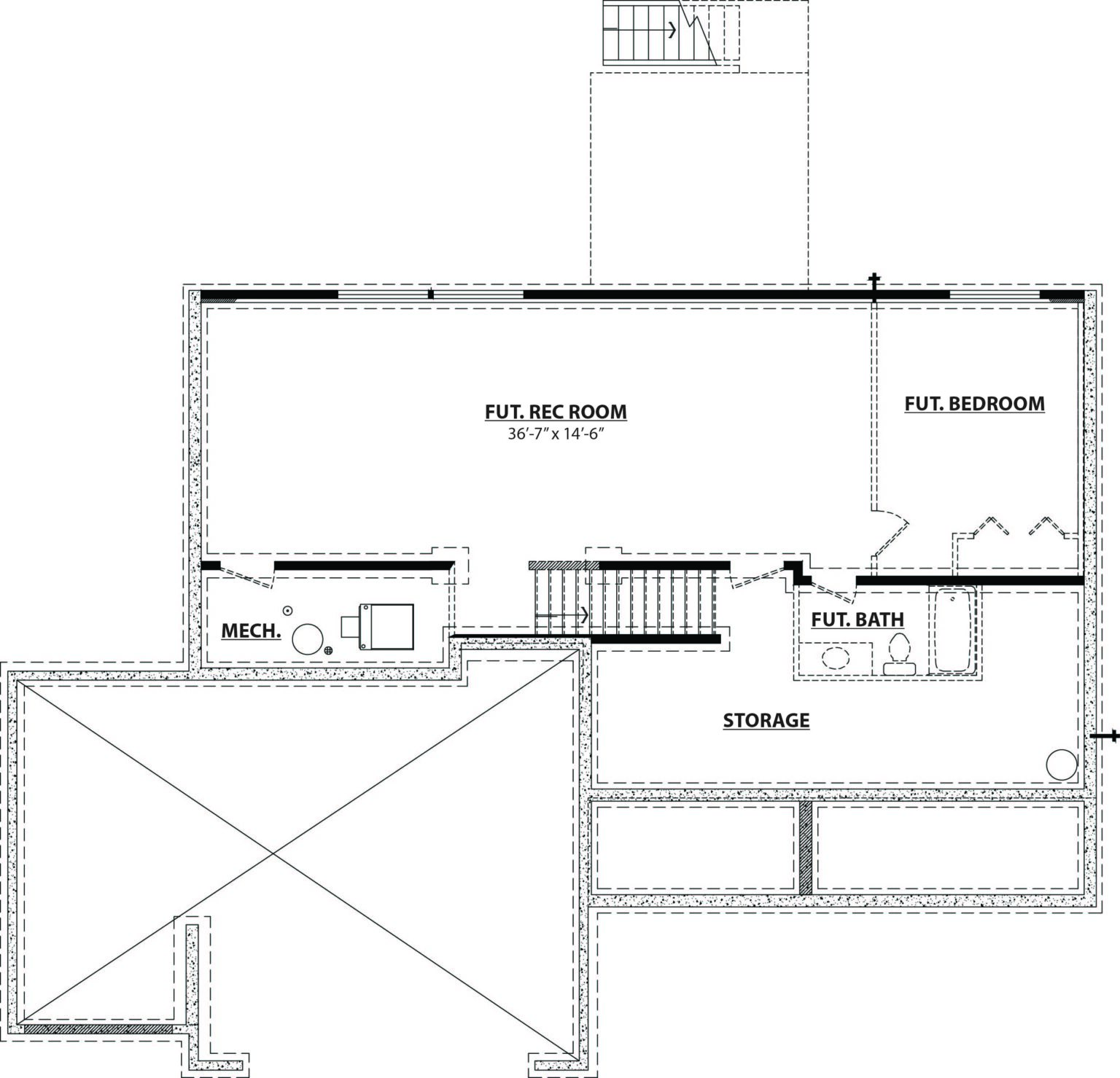
Spectacular open concept two-story home with grand two-story foyer that leads to a dual staircase. Spacious great room gives way to both the den and dining area with large kitchen complete with a conveniently located corner walk-in pantry and island with snack ledge. The large primary suite has a great sitting area, large bathroom and walk-in closet. Appropriately placed second floor laundry room near the primary bedroom. Mud room includes a bench and lockers, closet, additional storage and leads to a private powder room.

Elevation Options

Sort through included base options and upgrade options for the exterior of your new home.

Floor Plan Options

Video

Bay Harbor Floor Plan, Elevation B

Bay Harbor Floor Plan, Elevation C

Available Homes

We have no Bay Harbor floor plan homes currently available.
Please contact us about building your home in one of our communities, or about currently available homes with similar floor plans.

Recently Sold Homes

Sold

15783 Norwalk Road

2,646 sq. Ft.
4 bed | 2.5 bath
Sold
86 ST_Bay Harbor_Elevation_2.26

15721 Norwalk Road

2,646 sq. Ft.
4 bed | 2.5 bath