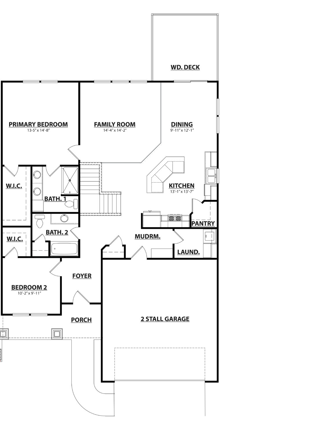
Carrington Condo Floor Plan

Ranch style condo plan with open great room, dining and kitchen complete with walk-in pantry and snack ledge in curved/angled island. Primary suite features walk-in closet, private bathroom with dual-sink vanity and access to main floor laundry. Additional bedroom adds space for company or other uses (office space), as well as an additional full bathroom on the main floor.  2-Stall and 3-Stall Garage options available. The Carrington will always be an end unit. Zero-step entry available.

This floorplan is available as a 2 and 3 unit in the Villas at the Ravines and Waterton Pointe neighborhoods and as a 2 unit only in the Waters Edge and Woods of Albright neighborhoods.

Elevation Options

Sort through included base options and upgrade options for the exterior of your new home.

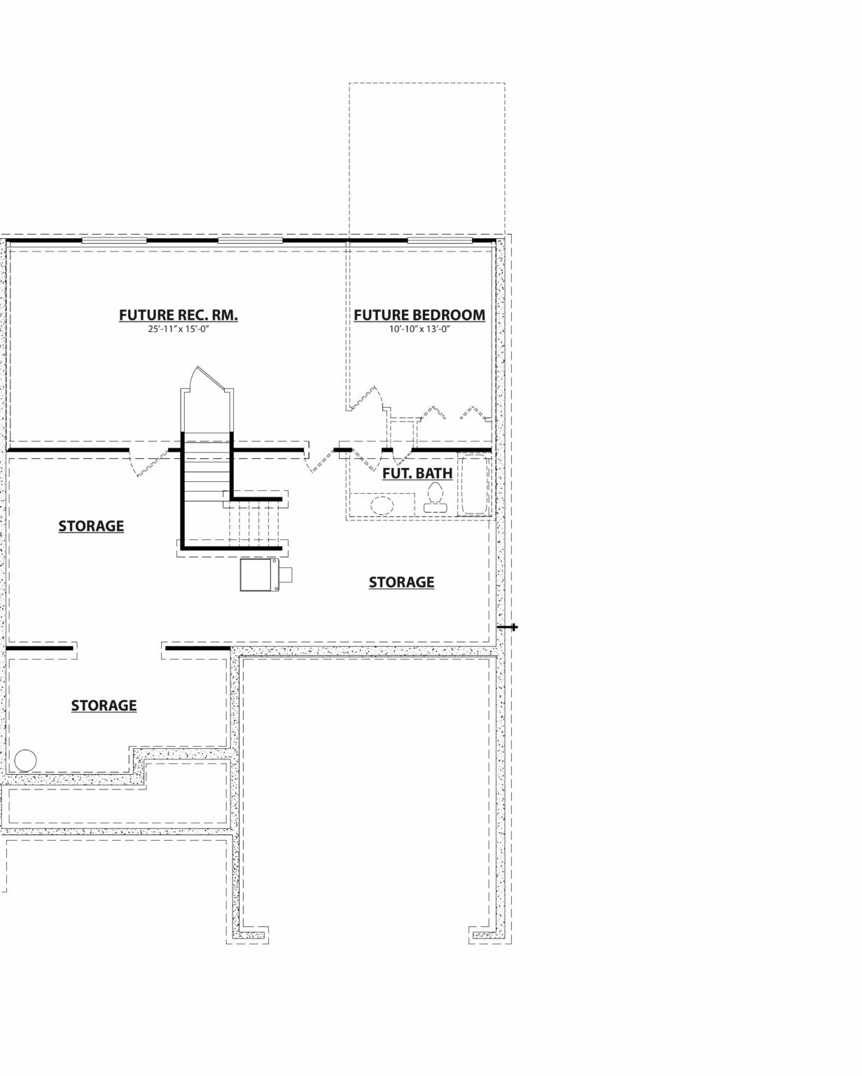
Floor Plan Options

Video

Available Homes

Pending

5546 Albright Avenue

$490,000 | 2,090 sq. Ft.
3 bed | 3 bath

5553 Canal Avenue

$510,000 | 1,560 sq. Ft.
3 bed | 3 bath
47 WA_Carrington_Elevation_9.25
Pending

5460 Albright Avenue

$525,000 | 2,234 sq. Ft.
3 bed | 3 bath
Pending

6602 Timber Crest Drive

$539,900 | 2,242 sq. Ft.
3 bed | 2.5 bath

6604 Timber Crest Drive

$539,900 | 2,242 sq. Ft.
3 bed | 2.5 bath

Recently Sold Homes

Sold
JTB Homes_65 WA_Carrington_Exterior_4.25

5561 Canal Avenue

2,090 sq. Ft.
3 bed | 3 bath
Sold
117 WC_Carrington_Elevation_1.26

7603 Brook Villa Court

2,234 sq. Ft.
3 bed | 3 bath