Floor Plan Information

Harbor Springs House Plan

Appealing entry porch leads to this ranch home with cathedral ceilings. Welcoming open living room, dining, and kitchen complete with large pantry and island with snack ledge. There is a convenient separation of the guest rooms and primary suite to ensure privacy. The primary suite features a private bathroom with a dual-sink vanity, and an attached walk-in closet.

Elevation Options

Sort through included base options and upgrade options for the exterior of your new home.

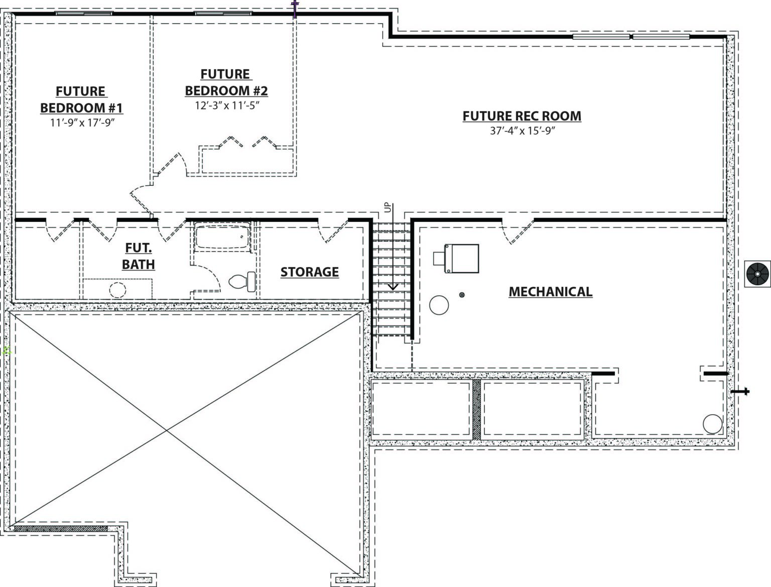
Floor Plan Options

Available Homes

Pending

8326 Kettle Hill Court

$729,900 | 3,070 sq. Ft.
5 bed | 3.5 bath
Pending

7769 96th Street

$849,900 | 3,238 sq. Ft.
5 bed | 2.5 bath

Recently Sold Homes

No Harbor Springs floor plan homes have been sold recently.

X